Kitchen Remodel Cost in Tampa FL

A Kitchen Remodel cost in Tampa FL varies from what you may be looking for. Check out some of our previous projects to get an idea of what you may be looking for.

SMALL U-SHAPED KITCHEN

$48.500 – $60,200

kitchen renovation tampa fl
  • Cabinet Brand Diamond Vibe Semi-Custom Cabinetry
  • Door & Style Finish Bryant Door Style, White Painted Hardwood
  • Counter Tops Pombeii Volaza Quartz
  • Plumbing Kohler Sterling ProHs Sink & Delta “Emmaline” Faucet
  • Backsplash Tesoro Grunge Aqua Subway Tile behind Vent and Accent Wall, Tesoro Albatross Deco Arrow in White on Backsplash and Coffee Bar

  • Flooring Kept existing

SMALL U-SHAPED KITCHEN WITH ISLAND

$41,200 – $52,050

kitchen renovation tampa fl
  • Cabinet Brand Fabuwood Kitchen Cabinetry 
  • Door & Style Finish Prima Bianco Frameless 3/4″, High Gloss White Acrylic Finish
  • Counter Tops Pompeii Rock Salt Quartz
  • Plumbing Kohler Sterling ProHs Sink & Delta “Cassidy” Faucet
  • Backsplash Glazzio Westminister Series “Western” Derby”
  • Flooring Kept existing

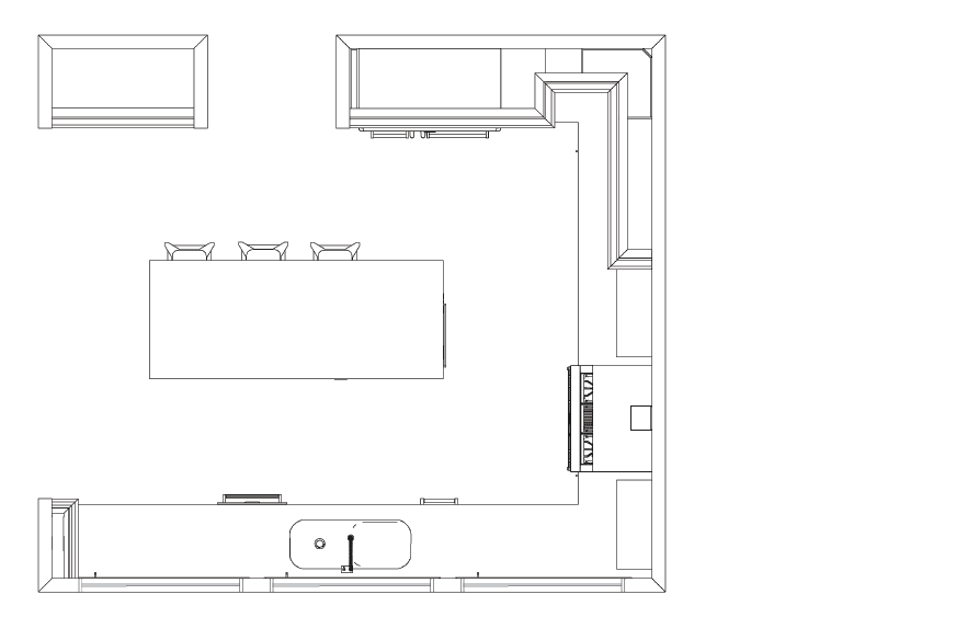
LARGE L-SHAPED KITCHEN WITH ISLAND

$62,600 – $79,100

kitchen renovation tampa fl
  • Cabinet Brand Diamond Vibe 
  • Door & Style Finish Bryant Shaker with 5-piece drawers
  • Counter Tops Cambria Quartz Summerhill
  • Plumbing ProHs Kohler Sterling Sink & Delta Trinsic Touch Faucet
  • Backsplash Daltile Brickworks Studio BW01
  • Flooring Kept existing

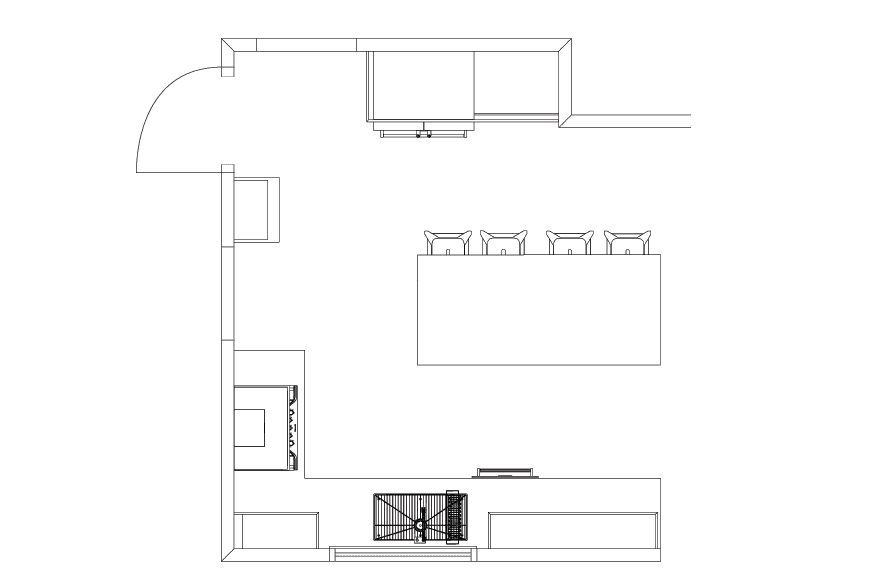
LARGE U-SHAPED KITCHEN WITH ISLAND

$63,650 – $80,400

kitchen renovation tampa fl
  • Cabinet Brand Diamond Vibe 
  • Door & Style Finish Walder Wood with Truffle Finish (Island)
  • Counter Tops Pompeii Diamente Quartz
  • Plumbing Franke 18 Gauge Sink, Delta “Cassidy” in Champagne Bronze Faucet
  • Backsplash Glazzio Yosemite Prairie Afternoon under range & Tesoro Slide White Glossy under Cabinets
  • Flooring Tesoro Pennellato Grigio Porcelain Tile

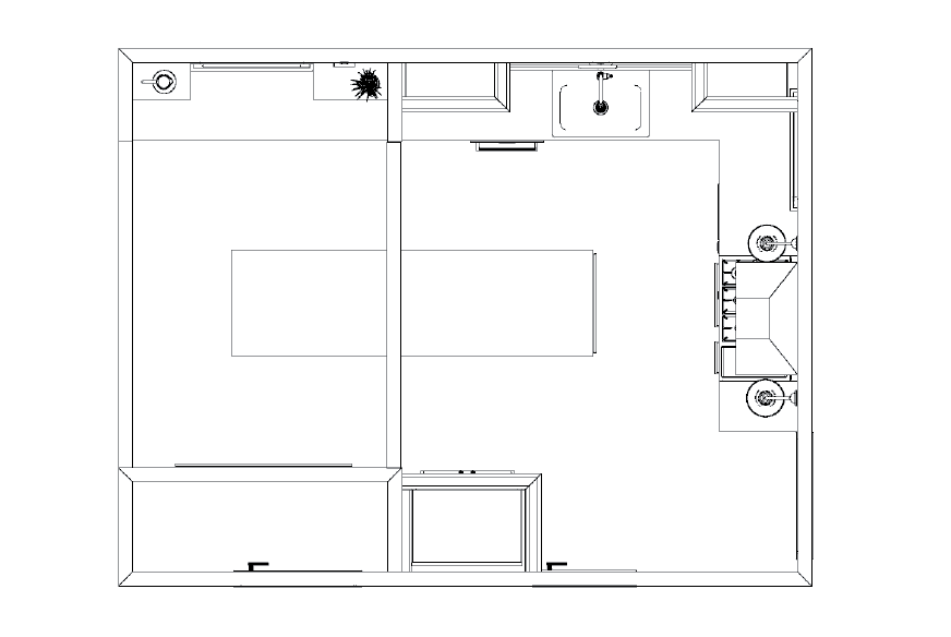
LARGE U-SHAPED KITCHEN WITH ISLAND

$70,200 – $88,700

kitchen remodel tampa fl
  • Cabinet Brand Dura Supreme (Island) & Diamond Vibe (Perimeter)

  • Door & Style Finish Hudson Door Style with Gale Force Painted Finish, Perimeter: Bryant Door Style with White Painted Finish
  • Counter Tops Galant Quartzite
  • Plumbing Kept existing
  • Backsplash Tesoro Grunge
  • Flooring Kept existing

LARGE KITCHEN WITH ISLAND

$74, 100 – $93,600

kitchen remodel tampa fl
  • Cabinet Brand Diamond Vibe Semi-custom Cabinetry
  • Door & Style Finish Bryant Full Overlay Door Style, White Painted Hardwood on perimeter & Maritime on the Island
  • Counter Tops Pompeii Argento Quartz
  • Plumbing Kohler Whitehaven Farmhouse Sink & Delta “Cassidy” Faucet
  • Backsplash Daltile Retroclassique subway tile in a herringbone pattern in color Lily
  • Flooring Tesoro Lux-wood Silver Birch

LARGE U-SHAPED KITCHEN WITH ISLAND

$79,325 – $100,200

kitchen remodel tampa fl
  • Cabinet Brand Diamond Vibe 
  • Door & Style Finish Shaker Door Style
  • Counter Tops Cambria Colton Quartz
  • Plumbing Kohler “Strive” Apron Front Sink, Delta Traditional Pot Filler & Delta “Cassidy” Champagne Bronze Pull Down Faucet, Bar: ProHs Bar Sink & Delta “Cassidy” Champagne Bronze Pull Down Faucet
  • Backsplash Tesoro Studio Line #7222 Chablis
  • Flooring Kept existing